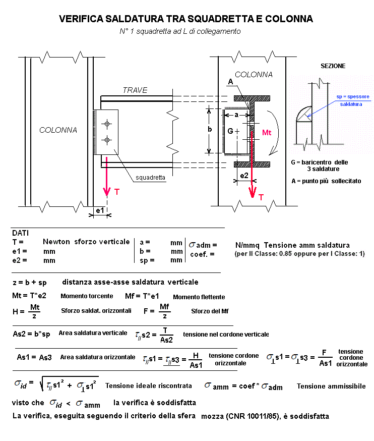
Verifica saldature squadretta attacco trave su pilastro
* * *
OGGETTO:
n° decimali =
INSERIRE I DATI
per i decimali
usare il punto
T = sforzo verticale
Newton
e1 =
mm
e2 =
mm
a =
mm
b =
mm
sp =
mm
σ adm = Tensione amm saldatura
N/mmq
coef.= (per II Classe: 0.85 oppure per I Classe: 1)
coeff.----
RISULTATI
z = b + sp = braccio della coppia interna
mm
Mt = momento torcente
Nm
Mf = momento flettente
Nm
H = Sforzo orizzontale
N
F = Sforzo che genera Mf
N
As1 = Area N° 1 cordone orizzontale
mmq
τ s1 = tensione nei cordoni orizzontali
N/mmq
As2 = Area cordone verticale
mmq
τ s2 = tensione nel cordone verticale
N/mmq
σ s1 =
N/mmq
σ id. (<= σ amm.) = tensione ideale riscontrata
N/mmq
σ amm. =
N/mmq
1 daN/cmq = 10 N/cmq = 1 Kgf /cmq
- Stampa -